Urban planning in Zaragoza. prof. José Maria Ordeig
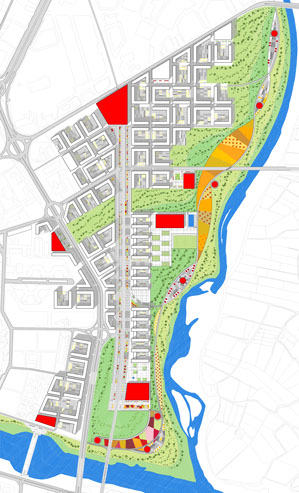
collaboration. Guillermo Montesinos, Antonio Suárez On the occasion of the exhibition Floralia to be held in Zaragoza in 2014, is proposed to develope an urban planning in an area of the city near the mouth of the river Gallego. It is an area that lives back to the river. Thus is posed a green area that will host the exhibition and serves as a transition between the city and the water. The acceses are also very important, so the train marks the axis of the planning above a large boulevard.