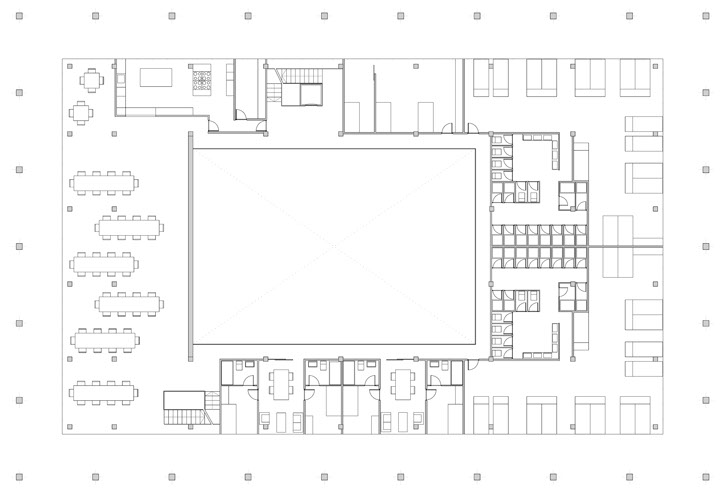
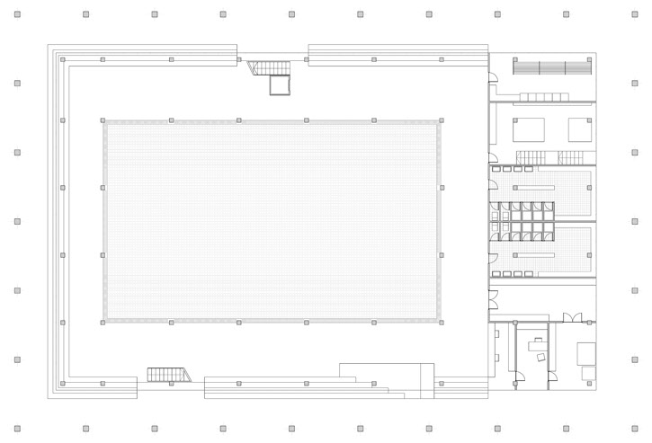
Hostel with swimming pool. prof. Miguel Ángel Alonso del Val Project of a hostel with indoor pool in Mount Ezcaba of Pamplona, Navarra. The project is entirely developed in wood. It is chosen a large deck that fits the hillside. This large deck is made up scissor beams that displace the ridgepole. This movement generates a skylight that gives daylight throughout the interior. The rest of the building is organized around the pool with a very simple program.